Sez Development At Hindupur
  • Share this portfolio
  • Previous Portfolio
  • Next Portfolio
  • Portfolio Detail
  • Change Portfolio Zoom
  • Portfolio List
  • Close Video

Sez Development At Hindupur

October 8, 2025

 

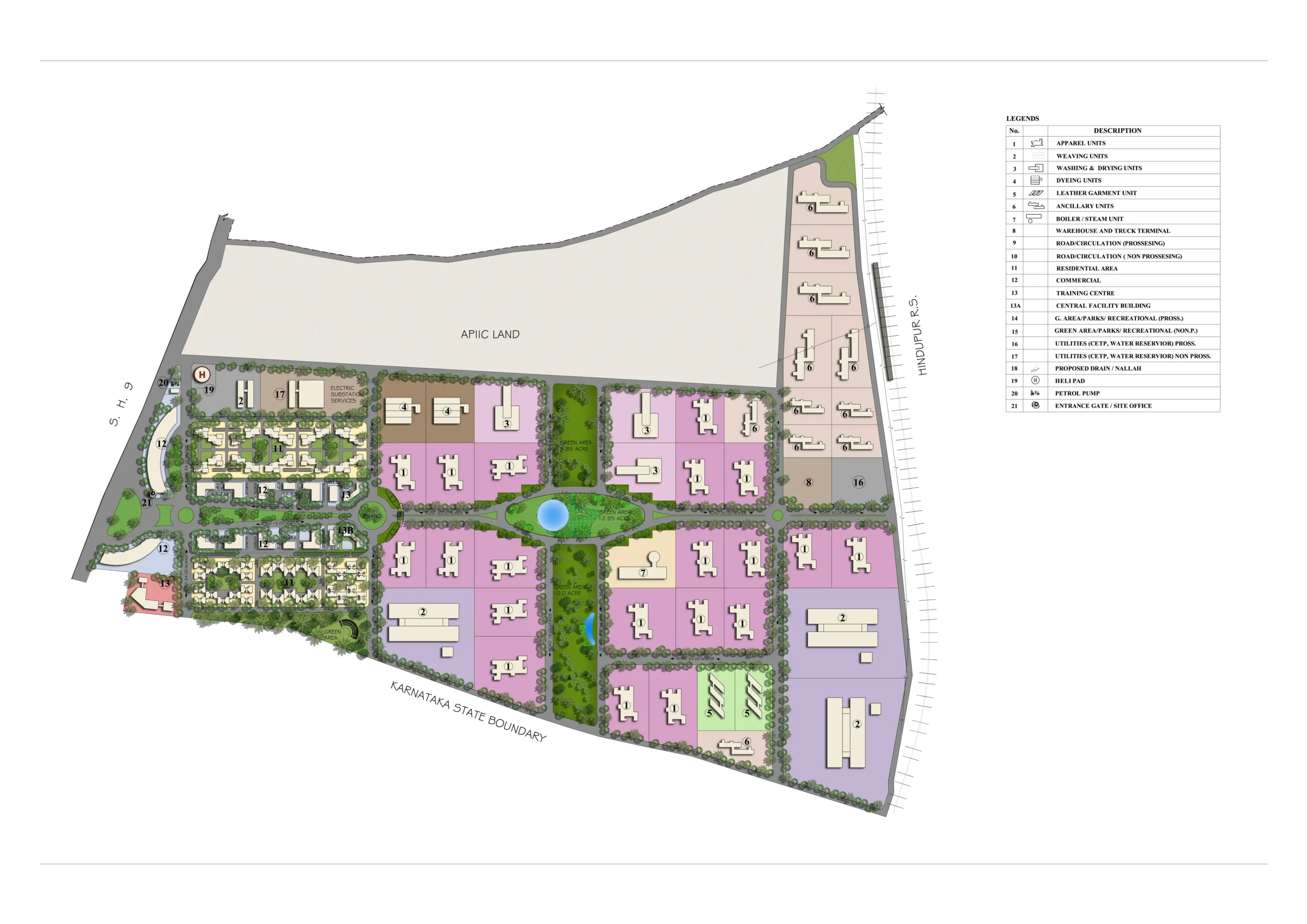
This state-of-the-art project is designed as an apparel and government Special Economic Zone (SEZ). It seamlessly integrates an exhibition and convention complex, commercial offices, a hotel, training facilities, day care centers for workers and their children, and a school in the Non-processing zone. The Processing zones include apparel units, washing and dyeing units, weaving units, and ancillary units such as leather garment units. Support facilities such as a truck terminal, warehouse, and canteen are also provided.

The project’s highlight is the gate complex, constructed using steel and fabric, which serves as the central feature of the site and connects to the convention center.

Title

Sez Development At Hindupur

Location

Bengaluru, Karnataka, India

Services

Master Planning, Infrastructure Planning, Architecture (Concept & Preliminary)

Sector

Urbanism & Townships

You cannot copy content of this page

Atelier VAMA