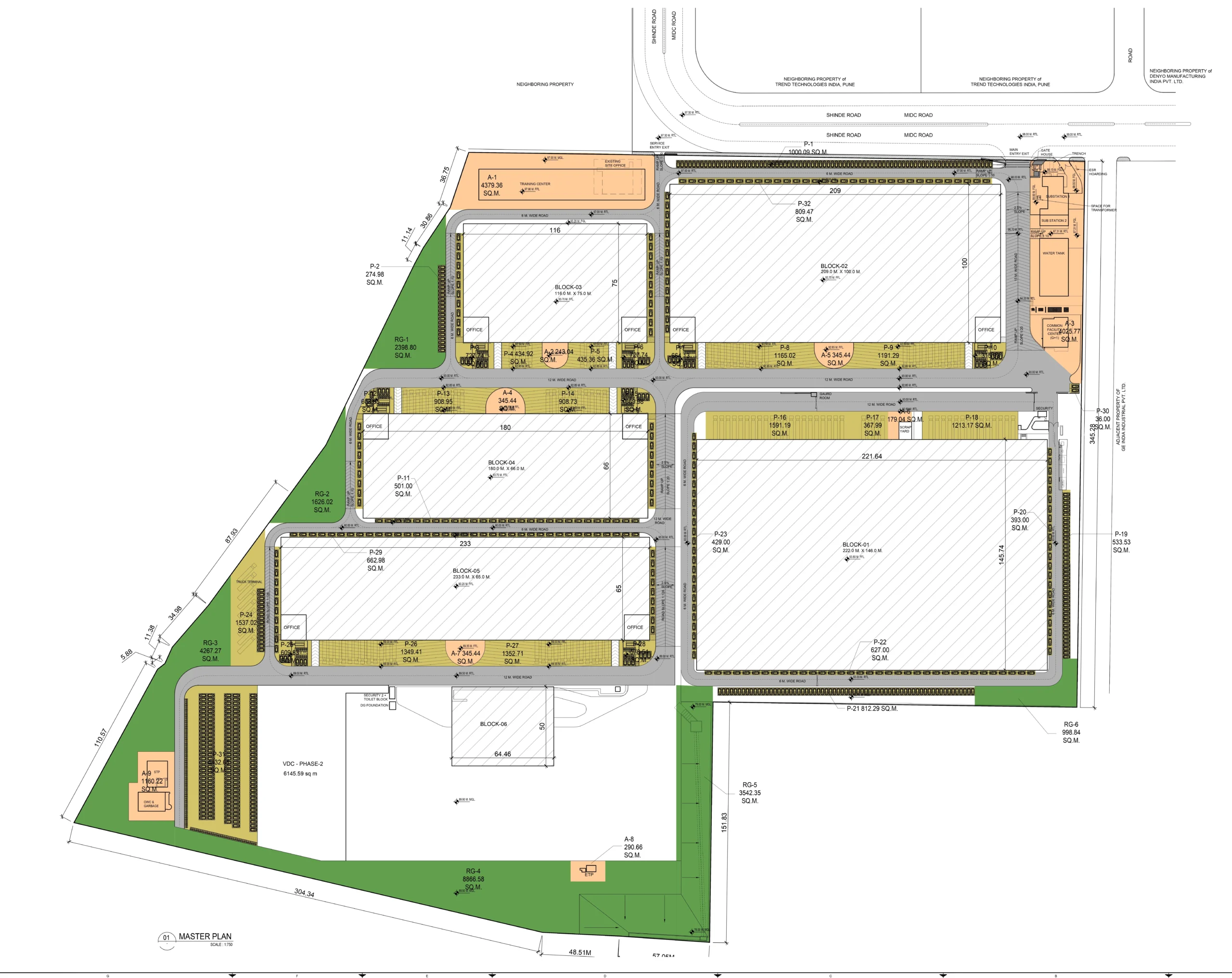
The development spans 53 acres and includes the construction of six warehousing units. Two of these warehousing units have been designed as a part of a Design and Build scheme.
The development spans 53 acres and includes the construction of six warehousing units. Two of these warehousing units have been designed as a part of a Design and Build scheme.
ESR Chakan-1 Industrial And Logistic Park
Chakan, Pune, Maharashtra, India
Master Plan with Design for Electrical, Fire fighting, water-supply & drainage systems
Industrial
You cannot copy content of this page

Prof. Ar. J. Subramanian
Technical Advisor, Atelier VAMA
For over five decades, Prof. Ar. J. Subramanian has been a pillar in the architecture field, having designed and supervised numerous projects both in India and abroad. After graduating with a gold medal from the University of Madras in 1965, he began his career with M/s. Prynnne Abbot & Davis, Chennai and eventually became a partner with Pithavadian & Partners. During his tenure, he was responsible for the design and supervision of many prestigious projects in India.
In 1989, Mr. Subramanian joined STUP Group of Companies in their overseas operations and has since been involved in the design and supervision of several prestigious projects in the Middle East and Africa. He has also been actively involved in a number of major projects in India, most notably the new International Airport at Hyderabad, which has been accorded with a Silver rating by LEED.
He was also enlisted in the International Roster of Experts by UNCHS of UN and has been associated with various academic activities such as Visiting Faculty, Project Guide, Design Jury, Examiner, etc.
Currently, he serves as the Technical Advisor of Atelier VAMA, as well as the Principal at the McGAN’s Ooty School of Architecture.
Recently, he was honoured with the “Life Time Achievement Award” at a National Conference in Chennai, India.

Siddheshwar Ruikar
BIM Manager, Atelier VAMA
Siddheshwar Ruikar is a BIM Manager with a keen interest in modelling architectural designs and taking projects to completion. He has an extensive 22+ years of experience in the field of architecture, including drawing, modelling and managing a variety of projects, ranging from shopping malls, commercial complexes, hospitals, airports, residential towers, and warehouses.
In 2000, he earned his Architectural Draughtsman Certificate from the Maharashtra State Board of Mumbai, and in 2014 he completed a Revit BIM software diploma.

Biju P Chacko
Lead – QC & Document Control, Atelier VAMA
Biju has an eye for detail and is an expert in quality control and document control at Atelier VAMA. He is committed to staying current with concepts and trends in architecture, and his impressive portfolio of successful projects is a testament to his dedication and passion for the craft.
Over the last 27 years, Biju has mastered the art of detailing in the field of architecture. From commercial complexes and hospitals, to airports and residential towers, he has led and managed an impressive range of projects. Certified by the Industrial Training Centre in 1995, he has since earned a diploma in Revit BIM software and is an expert in quality control and document control.

Annie Diana Ninan
Principal Architect, Atelier VAMA
Ar. Annie Diana Ninan is the Principal Architect at Atelier VAMA, bringing over two decades of experience across the Indian and international building industry. She holds a Master’s degree in Sustainable Environmental Design from the Architectural Association (AA) School of Architecture, London, and a Bachelor’s in Architecture from Pillai College of Architecture (PiCA), Mumbai University. She is a distinguished recipient of the British Chevening Scholarship, J. N. Tata Endowment Award, Lotus Scholarship, and AA Bursary Award.
Her diverse portfolio includes public institutions, airports, hospitals, hotels, museums, and large-scale infrastructure projects. Notable works include the Seat of Government in Ghana, Mahatma Gandhi Convention Centre in Niger, Aerospace Museum in New Delhi, Patni Software Campus in Chennai, and the Hyatt Regency in Lucknow, alongside airport interior concepts for Vijayawada and Jabalpur. She has also contributed to the master planning of logistics hubs and educational campuses.
Annie has served as a full-time Assistant Professor at Dr. D.Y. Patil College of Architecture, Navi Mumbai. Her research paper on Low-energy Passenger terminal for airports was presented at PLEA 2008 in Dublin, establishing her expertise in sustainable and climate-responsive architecture. Her design ethos focuses on innovation, contextual sensitivity, and challenging conventional norms to create purposeful, future-ready environments.

A.V. Soman
Chief Manager, Atelier VAMA
A.V. Soman is the Chief Manager at Atelier VAMA, with over 30 years of experience in civil engineering, project execution, and design management. A graduate of the College of Engineering Pune (COEP), he has led the planning and delivery of major infrastructure projects across India.
His portfolio spans hospitality, mass housing, commercial buildings, public institutions, logistics parks, and industrial developments. Landmark projects include the NABARD Head Office in BKC, mass housing in Panvel and Nerul, the Kirloskar Ferrous Iron Plant in Karnataka, and hotels like Ramada Mumbai and Hyatt Lucknow.
Soman excels in construction administration, project planning, and stakeholder coordination. Known for his strategic foresight and technical acumen, he consistently delivers complex projects on time and within budget.

Vasudha Alimchandani
Proprietor, Atelier VAMA
Vasudha Alimchandani is a seasoned architect and interior designer, known for her refined design sensibility, deep technical expertise, and decades of experience across a diverse range of projects. She holds a Master of Architecture from the University of Colorado, Denver (1990–1992), and a G.D. Arch from the Academy of Architecture, Mumbai (1986–1990).
In 1994, she founded her independent practice—Vasudha Alimchandani & Associates—specializing in corporate interiors and architectural projects that reflect a thoughtful balance of form and function. Her work is characterized by a commitment to design excellence, user-centric thinking, and contextual relevance.
Vasudha has also contributed significantly as an Associate Architect at STUP Design Forum, where she played a key role in the conceptualization and design development of major institutional projects, including NIFT Bangalore, ISRO Ahmedabad, MTNL Mumbai, and Shikshak Sadan in Bangalore. In addition, she held a senior advisory position at STUP Consultants Pvt. Ltd., overseeing finance and administrative strategy and helping steer the company towards notable success.
Her portfolio spans an impressive range of landmark projects such as the Banjara Commercial Complex in Hyderabad, NBC Corporate Interiors and other corporate environments in Mumbai, the Training Complex at the New Satellite Application Centre in Ahmedabad, the IOCL Head Office in Delhi, the Seat of Government & Presidency in Ghana, and the Mahatma Gandhi International Conference Centre in Niamey, Niger—showcasing her versatility across both architecture and interior design on national and international platforms.

Abhin C. Alimchandani
Proprietor, Atelier VAMA
Abhin C. Alimchandani is the driving force behind Atelier VAMA, a boutique architectural firm renowned for its world-class designs and commitment to sustainable urban development. With a career spanning over 30 years, Abhin is a holistic designer whose innovative work bridges the domains of Urban Design, Architecture, Engineering dialoguing with context, culture, technology, and art.
Abhin’s educational journey began at the esteemed Academy of Architecture in Mumbai and culminated in advanced studies at the prestigious École des Beaux-Arts and the Sorbonne University in Paris, where he earned M.Phil.-level certificates in History and Theory of Architecture and Conception in Architecture. A recipient of the French Government Scholarship, his academic rigor and global exposure have been instrumental in shaping his unique design philosophy.
As an award-winning architect, Abhin has designed over 250 projects across India, Africa, and the Middle East, creating landmarks that resonate with cultural relevance and architectural brilliance. Iconic works like the Presidency in Ghana, the Parliament of Gambia, the Mahatma Gandhi International Conference Centre in Niger, Hyderabad International Airport, Vijayawada & Jabalpur Airports, the Atal Pedestrian Bridge over the Sabarmati River, Dhana Dhanya Cultural Complex in Kolkata, and the Sultan Qaboos Hospital Project in Oman exemplify his ability to merge visionary aesthetics with technical precision.
Beyond Atelier VAMA, Abhin has left an indelible mark as the founder of STUP Design Forum and a former Chairman and Director of STUP Consultants. Under his leadership, the firm expanded its operations to over 40 countries, becoming a global powerhouse in engineering and design consultancy.
Abhin’s contributions to architecture have earned him numerous accolades, including the Construction World Top 10 Architects Award (seven-time winner) and the ENR Global Best Project Award. His passion for excellence is reflected in his leadership of multidisciplinary teams.
Awards and Achievements
– Construction World Top 10 Architects Award (2008–2017)
– ENR Global Best Project Award 2016 – Military (Ministry of Defense Complex, Kabul, Afghanistan)
– UIA (Union of International Architects) Best Team Entry Award, 1988
– French Government Scholar, 1992 & 1993
Education
– CEAA (M.Phil.) in History and Theory of Architecture – École d’Architecture, Paris-Villemin, École des Beaux-Arts
– CEAA (M.Phil.) in Conception in Architecture – École d’Architecture, Paris-Villemin, École des Beaux-Arts
– Diploma in Computer-Aided Design – École d’Architecture, Paris-La Défense
– G.D. in Architecture – Academy of Architecture, Mumbai
With an enduring legacy of excellence and an unwavering vision for the future, Abhin C. Alimchandani remains a trailblazer in the field of architecture, shaping the built environment for generations to come.